Property Type: Property Land (Eigendom)
Address: Caya G.B. Betico Croes #172
Location area: Oranjestad
Country: Aruba
Listing status: Active
Land Size: 782 m2
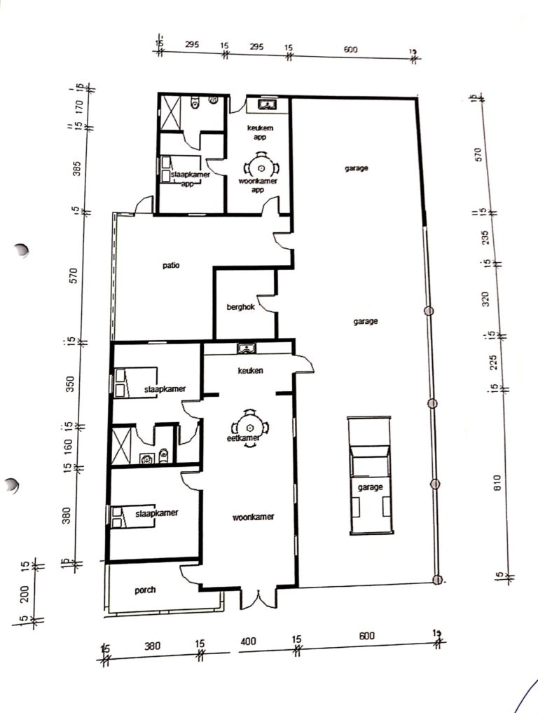
Building space: 322 m2
Build year: 1950
Bedrooms: 3
Bathrooms: 2
Included: Porch, patio, kitchen, dining room, living room, store room, big garage, complete facing
Also includes: (1) apartment unfinished
Property Description:
Firstly, this strategic commercial oriented property is situated on the Edge of Oranjestad on Caya Betico Croes heading to Cumana. Moreover, the property is located right next to AruVision, and is neighbors with Xerox . Thus, this property is located next to multiple businesses, making this a great place for a business to set up their office. However, the house needs restoration and work on it, but is Ideal for any kind of business that needs a location like this in Town. Lastly, owners are open for negotiation with a serious Buyer….!!!
Price: Awg: 395.000 / U$D: 221.910
Listing Agent: Aurora Tromp or Raymond Tromp
Contact Us:
π²+ 297- 7307871 / 7317871
π§info@capitalreliancearuba.com
Follow Us:
Facebook: @capitalreliancearuba π
Instagram: @capital.reliance.aruba π
View More Properties:
@Properties π








